• 科普艾尔
  • 高效节能风机
  • 超静音空调风机
  • 科普艾尔宁静超越
产品展示
建筑空调风机
KPSF分体管道送风机
KPQK全热新风交换机
KPSD多孔静音送风机
KPSY圆形管道送风机
KPDK空调离心风机
KPSJ静音直流送风机
KPSS双向静音送风机
KPT天花全金属换气扇
KPFM圆弧贯流风幕机
KPRM圆弧冷暖贯流风幕机
KPPJ静音直流送风机
建筑消防风机
HTFC(DT)柜式离心风机
HTF消防排烟轴流风机
SWF混流风机
T35-II轴流风机
SDF隧道风机
KPWD屋顶风机
YDF诱导风机
WEXD边墙风机
环保净化系列
油烟净化器
NTD厨房排烟风机
防火阀静压箱系列
防火阀
圆型风口
A型圆风口
B型圆风口
C型圆风口
D型圆风口
E型防雨风口
消声器
静压箱
家居新风系列
家用新风机
地送风管件
送进风风口
天花管配件
消音静化箱
机电安装工程
空调安装工程
消防安装工程
环保除尘工程
信息搜索
关键字:
范 围:
首页产品展示
橱窗模式   列表模式   简介模式
 
  KPDK空调离心风机
  KPSY圆形管道送风机

一、KPSY圆形管道送风机图片

二、KPSY圆形管道送风机概述 

1、外壳:采用可深拉伸的优质冷轧铁板用模具拉伸而成,表面喷塑处理,具有很强的防蚀能力。经计算机优化的流道设计,使叶轮能产生最大的效率。进出风口直径尺寸相同,按标准管道设计,便于安装、维修与清洁。

2、叶轮:叶轮叶片为后弯式设计,叶轮与外壳整体均有良好的配合,使风机能产生最大的风量和最高效率,最低噪声。
3
、外转子电机:采用外转子单相异步电动机,该电动机的转子在外,叶轮直接与电机转子通过压装而成,叶轮直接由电机转子驱动,可大大缩小风机体积,且运转平稳,效率高,寿命长。
4
、接线盒:采用加阻燃纤维的PVC材料注塑而成,防火性能好,使用安全,在机壳外面,接线拆装简便。

三、KPSY圆形管道送风机性能曲线图

四、KPSY圆形管道送风机技术规格性能参数

编号

  

额定电源

 [V/Hz]

功率

[W]

风量
[m3/h]
 

最大静压

[Pa]

噪音 

 [dB(A)]

风口直径

 [mm] 

转速

[rpm] 

A

KPSY-100A

220/50

33

210

250

50

Φ100

1640

B

KPSY-100B

220/50

75

290

302

60

Φ100

2410

C

KPSY-125A

220/50

35

235

280

50

Φ125

1630

D

KPSY-125B

220/50

75

390

342

60

Φ125

2350

E

KPSY-150A

220/50

52

380

258

51

Φ150

1440

F

KPSY-150B

220/50

98

750

360

61

Φ150

2450

G

KPSY-160A

220/50

76

510

270

52

Φ160

1530

H

KPSY-160B

220/50

115

810

375

62

Φ160

2710

I

KPSY-200A

220/50

91

520

320

52

Φ200

1520

J

KPSY-200B

220/50

155

1120

540

63

Φ200

2590

K

KPSY-250A

220/50

100

610

330

53

Φ250

1510

L

KPSY-250B

220/50

160

1310

580

64

Φ250

2400

M

KPSY-315A

220/50

122

1050

350

54

Φ315

1350

N

KPSY-315B

220/50

195

1720

690

65

Φ315

2390

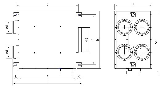
五、KPSY圆形管道送风机安装外形图 

六、KPSY圆形管道送风机外形尺寸 

  

Φd

ΦD

a

b

接管直径

KPSY-100A

100

242

20

146

Φ100

KPSY-100B

100

242

20

146

Φ100

KPSY-125A

125

242

25

146

Φ125

KPSY-125B

125

242

25

146

Φ125

KPSY-150A

150

271

25

153

Φ150

KPSY-150B

150

271

25

153

Φ150

KPSY-160A

160

271

25

153

Φ160

KPSY-160B

160

271

25

153

Φ160

KPSY-200A

200

345

28

175

Φ200

KPSY-200B

200

345

28

175

Φ200

KPSY-250A

250

345

28

175

Φ250

KPSY-250B

250

345

28

175

Φ250

KPSY-315A

315

400

28

175

Φ315

  KPSD多孔静音送风机

一、KPSD多孔静音送风机图片

二、KPSD多孔静音送风机概述 

KPSD多孔静音送风机在静音直流送风机基础上开发出的衍生机型,多孔静音送风机实现一机多室共用的排风设计理念,设置多档风量调节,避免能量的损失,体积小,风量大,超薄设计,占用空间较小,有超高的整体性能优势,适合用于高端会所、别墅、星级酒店等场所。

三、KPSD多孔静音送风机性能曲线图

四、KPSD多孔静音送风机技术规格性能参数

编号

  

额定电源[V/Hz]

功率

[W]

风量

[m3/h]

静压

[Pa]

噪音

[dB(A)]

直径

[mm]

风速

[m/s]

净重[kg]

A

KPSD15A-15

220/50

38.5

370

130

27

Φ145

6.2

7.9

B

KPSD15B-15

220/50

62.2

500

150

29

Φ145

8.4

8.6

C

KPSD18A-20

220/50

98.8

770

180

32

Φ195

7.2

13.8

D

KPSD18B-20

220/50

135

920

210

35

Φ195

8.6

15.2

五、KPSD多孔静音送风机安装外形图 

六、KPSD多孔静音送风机外形尺寸 [单位:mm]

  

A

B

C

D

E

F

H

L

W

出风管

进风管

KPSD15A-15

360

360

49

145

405

300

242

458

404

Φ150

Φ100

KPSD15B-15

360

350

49

145

405

300

242

458

404

Φ150

Φ100

KPSD18A-20

460

460

49

195

505

400

302

558

504

Φ200

Φ100

KPSD18B-20

460

460

49

195

505

400

302

558

504

Φ200

Φ100

  KPSF分体管道送风机

一、KPSF分体管道送风机图片

二、KPSF分体管道送风机概述 

KPSF分体管道送风机,能实现远程静音排、送风双功能,采用进口滚珠轴承,保障产品正常使用超10年长寿命。

风量从150CMH1900CMH共十多款机,每款机型的叶片出、入口角进行独特的优化设计和取值,保证了优越的性能,采用单向吸入性多翼式风轮,优化消声蜗壳流道设计,风量更大、噪音更低,非常适合写字楼、酒店、医院、别墅、会所等物业使用。

三、KPSF分体管道送风机性能曲线图

DPT系列分体式管道风机性能图

四、KPSF分体管道送风机技术规格性能参数

编号

  

电源
[V/Hz]

功率
[W]

风量
[m3/h]
 

静压

[Pa]

噪音 
[dB(A)]

直径
[mm]
 

风速
[m/s]
 

净重
[kg]

A

KPSF10A-10

220/50

19

150

65

39

Φ95

510

2.4

B

KPSF15A-15

220/50

26

230

98

43

Φ145

814

3.5

C

KPSF15B-15

220/50

34

300

121

46

Φ145

1420

3.9

D

KPSF15C-15

220/50

55

450

141

48

Φ145

2025

4.2

E

KPSF18A-20

220/50

78

500

163

45

Φ195

2528

6.8

F

KPSF18B-20

220/50

90

600

187

46

Φ195

2833

7

G

KPSF18C-20

220/50

118

700

203

48

Φ195

3338

7.2

H

KPSF18D-20

220/50

135

800

218

50

Φ195

3842

7.5

I

KPSF18E-20

220/50

156

900

223

53

Φ195

4248

7.7

J

KPSF18F-20

220/50

225

1200

246

58

Φ195

4865

7.9

L

KPSF23B-25

220/50

286

1500

291

60

Φ250

65-68

16

M

KPSF23C-25

220/50

332

1700

309

62

Φ250

80-92

17

N

KPSF23D-25

220/50

375

1900

316

63

Φ250

92-105

17

五、KPSF分体管道送风机安装外形图 

DPT系列分体式管道风机外形尺寸图

六、KPSF分体管道送风机外形尺寸 

  

A

B

C

D

E

F

G

H

L

管道

KPSF10A-10

223

183

95

100

140

199

140

190

7x17

Φ100

KPSF15A-15

297

252

145

140

180

262

160

215

9x19

Φ150

KPSF15B-15

297

252

145

140

180

262

160

215

9x19

Φ150

KPSF15C-15

297

252

145

140

180

262

160

215

9x19

Φ150

KPSF18A-20

350

300

195

190

230

328

235

280

11x21

Φ200

KPSF18B-20

350

300

195

190

230

328

235

280

11x21

Φ200

KPSF18C-20

350

300

195

190

230

328

235

280

11x21

Φ200

KPSF18D-20

350

300

195

190

230

328

235

280

11x21

Φ200

KPSF18E-20

350

300

195

190

230

328

235

280

11x21

Φ200

KPSF18F-20

350

300

195

190

230

328

235

280

11x21

Φ200

KPSF23B-25

408

348

245

240

274

348

270

320

11x21

Φ250

KPSF23C-25

408

348

245

240

274

348

270

320

11x21

Φ250

KPSF23D-25

408

348

245

240

274

348

270

320

11x21

Φ250

  防 火 阀

  WEXD边墙风机

共计:24条记录 页次:1/4 每页:6条      1 [2][38 :
 
KPAE科普艾尔,离心风机,消防风机,新风机,静音风机,送风机,PM2.5健康风机 © 2010-2012 版权所有 粤ICP备11081774号
地址:中山市火炬区火炬路8号佰汇广场4幢13F 电话:0760-23895283 传真:0760-23895970 邮件:5496514@qq.com
本站由讯宇工作室-www.52xunyu.com-QQ:229878780(52讯宇工作室)提供技术支持
安全上网